導入
現在ドローンを使用した地形調査は非常に普及しています。私たちは最新のソフトウェアを駆使し、優れた内業処理を提供することに自信を持っています。
オルソ写真や地形・地物データは、現況図に正確に反映し、計画・設計・用地解放作業を正確に行うために役立ち、また現在のBIM設計に必要な3D地形データを完全に提供します。
現在ドローンを使用した地形調査は非常に普及しています。私たちは最新のソフトウェアを駆使し、優れた内業処理を提供することに自信を持っています。
オルソ写真や地形・地物データは、現況図に正確に反映し、計画・設計・用地解放作業を正確に行うために役立ち、また現在のBIM設計に必要な3D地形データを完全に提供します。
日本のインフラ設計には、各種設計規準を正確に適用する必要があります。私たちはお客様のご要望に沿った成果を提供することにより、大規模プロジェクトに関わることを誇りに思っています。
多くの規定に基づいた図面は私たちのエンジニアによって作成されており、常にお客様にご満足いただいております。
最新のソフトウェアを活用し、設計の提案から数量の計算、最終的な3Dモデルの構築まですべてのステップを実行しています。
土木設計プロジェクトには常に付帯施設が伴います。
私たちは、多年にわたる擁壁設計の経験を持ち、日本特有の補強土壁を提案から設計計算、数量算出、そして最終的な書類作成まで一貫して手掛けています。プレキャストコンクリート擁壁や排水システムも当社の強みです。土木設計プロジェクトでは、流域分析、排水検証、排水システムの配置といった重要な項目も担当しています。プレキャストコンクリート会社からの要求に基づいた構造図や配置図の作成も行い、お客様にご満足いただいています。
日本では、BIM/CIMの導入が徐々に進んでいます。私たちのエンジニアは、設計の経験と設計図書の理解力を活かし、常に最高精度の3Dモデルを構築し、スケジュール通りに進め、お客様の設計図書に完全に一致させています。モデル化の品質は要求される基準や規準に完全に準拠しています。現在、私たちはLOD400までのモデル化を実行することが可能です。
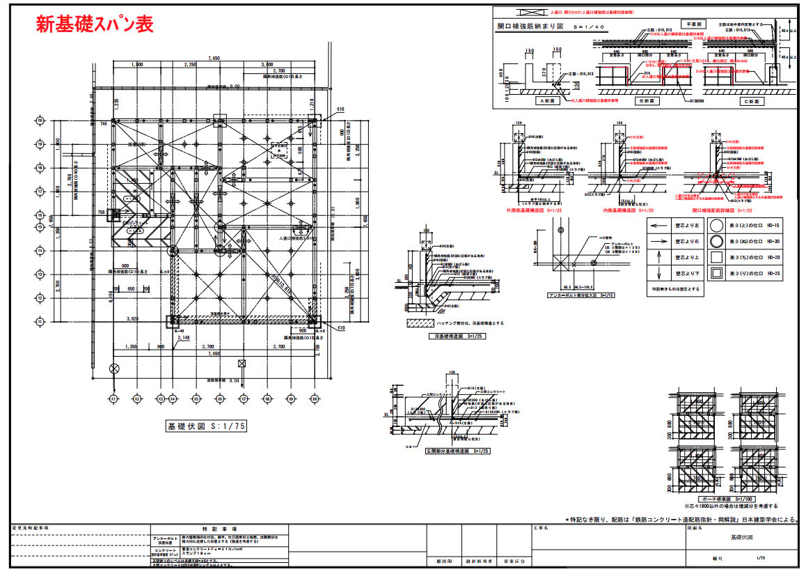
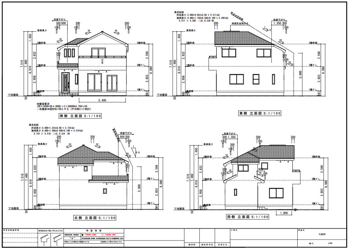
土木設計に加えて、私たちは日本向けの木造住宅の設計も行っています。建築家が手書きで描いたスケッチから、JWCADやArchitrend Zeroを使用して、木造住宅の設計図を作成しています。これらの設計図は、日本の木造住宅に関する基本的な基準や、各お客様の個別の基準を満たすものとなっています。